Пешеходный модуль Water Switch Dry Deck v.1 с клапаном
Арт. DDS-1
Характеристики
Изготовитель
—
Fonta
Присоединение, дюйм
—
1 1/2" ВР
Материал
—
Нержавеющая сталь / Полиэтилен
Цвет свечения
—
RGB
Подсветка
—
Да
Пешеходный модуль Water Switch Dry Deck v.1 с клапаном
Цена действительна только для интернет-магазина и может отличаться от цен в розничных магазинах
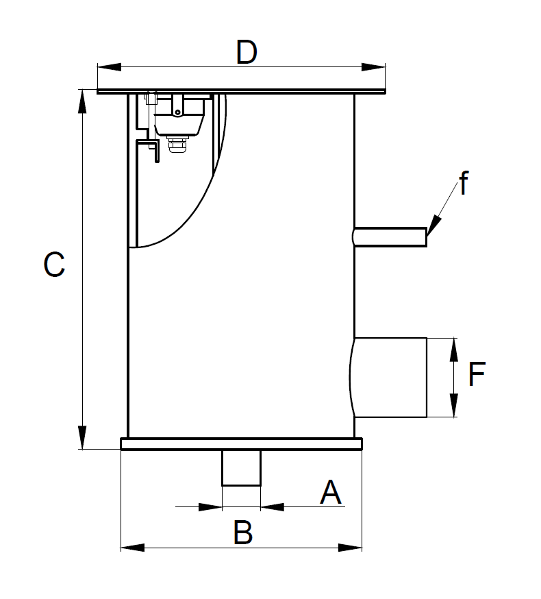
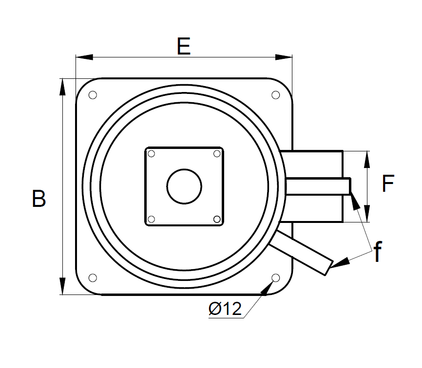
Пешеходный модуль спроектирован для установки в плоскостных («сухих») фонтанах.
Комплект модуля включает корпус из полиэтилена, декоративную решетку из нержавеющей стали, насадку, реверсивный клапан, систему RGB-подсветки и монтажный комплект. Также, в зависимости от модели, пешеходный модуль может иметь корпус из полиэтилена, реверсивный клапан или отсекатель струи.
Модуль может использоваться с пенной, многоструйной или одноструйной насадкой.
Пешеходная модульная система характеризуется простотой установки и обслуживания. Полиэтиленовый материал корпуса дешевле, прочнее и практичнее, чем корпуса из нержавеющей стали.
Опционально:
- индивидуальная комплектация;
- высота и диаметр пешеходного модуля;
- форма декоративной решетки (круглая или квадратная).
Комплект модуля включает корпус из полиэтилена, декоративную решетку из нержавеющей стали, насадку, реверсивный клапан, систему RGB-подсветки и монтажный комплект. Также, в зависимости от модели, пешеходный модуль может иметь корпус из полиэтилена, реверсивный клапан или отсекатель струи.
Модуль может использоваться с пенной, многоструйной или одноструйной насадкой.
Пешеходная модульная система характеризуется простотой установки и обслуживания. Полиэтиленовый материал корпуса дешевле, прочнее и практичнее, чем корпуса из нержавеющей стали.
Опционально:
- индивидуальная комплектация;
- высота и диаметр пешеходного модуля;
- форма декоративной решетки (круглая или квадратная).

|
Изготовитель
|
Fonta |
|
Присоединение, дюйм
|
1 1/2" ВР |
|
Материал
|
Нержавеющая сталь / Полиэтилен |
|
Цвет свечения
|
RGB |
|
Подсветка
|
Да |
|
Напряжение
|
12V DC / 24V DC |
|
Мощность, Вт
|
36 |
|
Масса, кг
|
16 |
Отзывы
Загрузка отзывов...
Добавить отзыв
Купить Пешеходный модуль Water Switch Dry Deck v.1 с клапаном в Ростове-на-Дону
Предлагаем Пешеходный модуль Water Switch Dry Deck v.1 с клапаном. Даем гарантию производителя. Сотрудничаем с надежными брендами, а также реализуем продукцию собственного производства. Благодаря этому у нас доступные цены.
У нас комфортные условия обслуживания клиентов. Закажите продукцию онлайн. Осуществляем доставку в Ростове-на-Дону. Работаем с коммерческими и государственными организациями, частными лицами. При необходимости бесплатно консультируем, помогаем с подбором оборудования.
